羽化成蝶
……
幼虫由蛹,经过痛苦的蜕皮磨练,化为美丽蝴蝶的过程。
在传统中国文化中
化蝶
充满水墨山水的诗情意境
充满梁祝般比翼双飞的千古绝恋
充满刻骨铭心的拼搏历程
……
破茧化蝶
断喙成鹰
是一种质的蜕变
是一种内在的修为
是一种自强不息的奋斗精神
……
彻底的新生
一个尘封了数年的场所
无人问津
……
……
直到一股强大的生命力
注入其中
……
开启了这里的蜕变历程
……
新生的过程
总是痛苦的
……
拆筋断骨的剧痛
是烈火焚身
不堪回首
……
对锦绣前程的
憧憬
∶
是忍受这一切痛苦的动力
那是光明的向导
那是炫丽的……翅膀
……
于是
∶
结茧自变
……
……
内力的修为
总在不经意间
成就了身体的结构
……
五府内脏的设置
需要专业的指导
哪怕是一尺间的大小
……
七筋八脉的疏通
更是离不开
绝顶高手的点拨
……
……
形态的构造
是用辛勤的汗水铸就
90天的日夜
只为彩羽下的筋骨
……
……
褪去丑陋的外衣
……
……
洗掉污浊的臭气
(格丽健日本光触媒专业装修污染治理)
……

……
终于
羽化成蝶
……




……
短短四个月的蜕变
脱胎换骨
(夏女士∶ 身为重庆医科大学附属口腔医院十多年的一线医疗工作者,拥有8年口腔医疗管理工作经历,目前兼任协尔口腔龙湖时代店资深管理顾问,夏女士深谙患者及医务人员所需所想。在整个设计中尽量使环境温馨、自然。)
……
还有冲锋陷阵在第一线的规划执笔
夏老师挚友
ID:安康鱼
(自由之子装饰工程设计有限公司的创意总监赵戈先生,也是我们协尔口腔医疗总监张翼医生多年的好友,夏女士的老同学。本次的涂鸦,也是赵先生专为协尔设计的。)
……
终于
看到了久违的笑脸
是为汗水付出的……欣慰
是为客人准备的……欢颜
是为实力充满的……自信
……
谁能想到
它的曾经
也是一纸黑茧
(构思:用于儿童休息区墙面,调皮的大嘴笑脸能消融部分医疗氛围的严肃与紧张。每一个卡通形象代表着大嘴里的牙齿,契合着口腔诊所的主题。每个形象又有各自的烂牙,观望心形的logo,祈盼获得健康牙齿)
……
这是一只飞舞在咖啡杯边的
蝴蝶
……
带着可可的香浓
……
带着书画的墨香
……
……
带着洁白的梦茧
……
……
让每一位进入这里的人
随着音乐的轻柔
感知
蝴蝶煽动空气的流动
……
……
作为一只梦想的蝴蝶
没有实力的翅膀
是飞不上蓝天的
……
作为这对有力的双翅
张老师当仁不让
(张翼博士:原重医大附属口腔医院正畸科、正畸教研室主任,现任协尔口腔医疗总监)
张翼医生领衔的正畸工作团队正式入住恒大中渝店,提供全方位的预约医疗服务。当然,除了张翼正畸工作团队外,还有许多隐居于协尔口腔的众多其它专业的高手。总之一句话:此处常有高手出没!
……
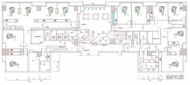
这只大到1000平米的蝴蝶
专业极致的设施与诊室
在重庆高端私人口腔医疗界里
是仅有的
……
12张牙椅
9间诊室
一间手术室
全套的消毒设备
KaVo的CBCT
显微镜治疗仪
还有协尔口腔的精锐医护团队
已经完全就位
……
……
这就是
Sharedent的蝴蝶
……


重庆民营诊所这次玩大了——记2016COS全国口腔正畸青年医师病例大赛